您好,欢迎访问畅享科技!

模具相关
您的位置: 主页 > 新闻中心 > 模具相关

塑胶双色模具设计入门资料+双色注塑机图解

发布日期:2020-10-22 14:27浏览次数:
双色模具使用双色/双料注射机,可生产出两种胶料(硬胶为主,再加.上软胶配合)及不同颜色的产品,特别适宜于成形有永久标记符合的各种按键。其优点是:同时成形缩短了生产周期,提高生产效率。
12.1 ARBURG 520C注射机
    现塑胶部拥有双色/双料注射设备为: (直角式) ARBURG520C注射机,由德国生产厂家ARBURG(雅宝)公司制造如图12. 1.1所示。注射装置由水平注射台和垂直注射台组成,两个注射台可做独立运动,如图12.1.2,图12.1.3所示
塑胶双色模具设计入门资料+双色注塑机图解
双色/双料产品成形过程为(以注入胶料
1、胶料2两种胶料为例):
    (1) 先注入胶料1;
    (2) 开模后顶出浇道;
    (3) 转盘转动1808至另一面;
    (4) 合模锁紧;
    (5)再注入胶料
2,另一模腔亦同时注入胶料1;
    (6) 保压,胶料1、胶料2同时冷却;
    (7) 开模,顶出成品和浇道,另一模腔只顶出浇道;
    (8)重复过程(3)(转盘转动1808至另一面)。
以下针对ARBURG 520C注射机的相关参数说明如下。
12. 1.1设备技术规格
(1)相关规格如下表:
项目 单位 参数 双色模特别参数
最大锁模力 204  
最大合模力 7.14  
最大开模力 5.1  
最大开模行程(最小模厚时) mm 650  
最大容模宽度 mm 510 (参见12.2.2节)
最大容模高度(最大模长) mm 740 (参见12.2.2节)
最小容模厚度 mm 400 290(包括回转板)
最大容模厚度 mm 945-X 830-X (包括回转板)
最大机板跨距 mm 950  
格林柱间距 mm 520  
动模最大重量 公斤 1000  
最大顶出力 6.7  
顶杆最大行程 mm 225  
理论熔胶体积(1#水平注射台) cm3 353  
理论熔胶体积(2#垂直注射台) cm3 182  
最大射胶量(PS) (1#水平注射台) g 297  
最大射胶量(PS) (2#垂直注射台) g 153  
注:
    1)X表示模具所需求的最大开模行程,该机采用全液压直压式锁模;
    2)参数项所列值均为未包括附加板(混合射嘴板或回转板);
    3)双色模容模宽度、高度另见12.2.2节及图12. 2.2所示。
(2) 设备容模结构尺寸,如图12.1.4所示。
塑胶双色模具设计入门资料+双色注塑机图解
(3) 设备垂直注射
    嘴与模具三种配合形式如图12.1.5所示;为方便加工,优先选用第一种形式。
塑胶双色模具设计入门资料+双色注塑机图解
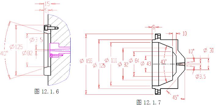
    设备水平注射嘴与模具的配合,其模具唧嘴结构如图12. 1.6图12.1.7所示:
塑胶双色模具设计入门资料+双色注塑机图解
12.1.2回转板尺寸
    回转板属于附加板,安装在动机板上,回转板结构尺寸如图12. 1.8所示。
    回转由抽芯机构油压驱动,可做+/-1808转动,仅适用于双色/双料注射。回转板上与模具配合尺寸如图12.1.9所示,中部冷却水道局部放大图如图12. 1.10所示。
塑胶双色模具设计入门资料+双色注塑机图解
塑胶双色模具设计入门资料+双色注塑机图解

    模具底板.上冷却水道、定位轴与回转板配合结构尺寸,如图12. 1. 11所示。
塑胶双色模具设计入门资料+双色注塑机图解
12.1. 3设备顶出结构
    ARBURG 520C注射机设有中心顶出,若实现双色/双料注射时所需的上下顶出,须在中心顶杆上加装」上下顶出机构。该(自制)顶出机构如图12. 1.12.所示。
塑胶双色模具设计入门资料+双色注塑机图解
附录1 ARBURG 520C注射机夹芯注射
    ARBURG 520C 注射机既能双色/双料注射,还可注射夹芯胶件,即胶件内部.填充与外层不同颜色或种类的胶料及迷彩外观。当成形夹芯或迷彩色胶件时,附加板(混合射嘴板)安装在设备定机板上,两个射嘴经附加板.上的混合射嘴,如图12. 1.13所示,从模具的一个唧嘴入胶,适合于通常结构的模具;混合射嘴具有独立加热线圈。
塑胶双色模具设计入门资料+双色注塑机图解
塑胶双色模具设计入门资料+双色注塑机图解
    夹芯注射原理如图12.1.4 所示,分三段注射充满整个型腔。第一段外壳成形部分填充量最大,溶胶填入型腔的绝大部分。第二段则在第一段的基础上继续向型腔充胶,以夹芯料不外露为原则。第三段填充量基本固定,只要封闭浇口部分即可。
    目前塑胶部夹芯注射还存在- -些缺陷无法克服,主要有胶件表面经常出现混色现象,浅色的表面层不能完全遮盖深色的夹芯料,夹芯料填充不均匀,夹芯率不高约20%以下。
 
12.2模具结构
    应用ARBURG 520C 注射机进行双色/双料注射,其模具结构说明如下。
  12.2.1-般结构
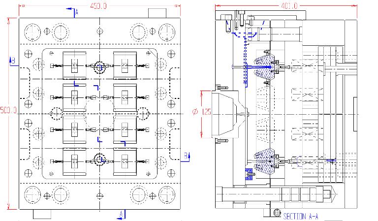
    双色/双料模具结构如图12.2.1所示。模具结构与普通(单色料)模具相比,有下列特点:
    (1)模具具有两组独立的顶出机构;
    (2)垂直端注射,从模具分模面或(三板模)水口推板与前模板之间入浇,三板模如图12. 2.6所示;
    (3)模具后模冷却由旋转板中间通入,再经模具底板引入后模;
    (4)模具固定在旋转板上,需有定位销定位,并保证项出杆准确对位;
    (5)模具底板、方铁和垫板之间须有定位销连接定位;
    (6)为使模具后模旋转1808后, 前、后模配合良好,模具边钉和(三板模)水口边的位置尺寸须对称一致。

双色/双料模具设计与制造注意要点:
    (1)为使模具装在回转板.上能作回转运动,模具最大高、宽尺寸应保证在格林柱内切圆直径&750mm范围内;当模具用压板固定于回转板上时,模具最大宽度为450mm,最大高度(长度)为590mm;另外,也为满足模具定位和顶出孔位置尺寸的要求,模具最小宽度为300mm, 最小高度(长度)为400mm, 如图12.2.2所示。
塑胶双色模具设计入门资料+双色注塑机图解
    (2)由于设备水平、垂直注射嘴端面为平面结构,模具唧嘴须满足平面接触,如图12.2.3所示。
    (3)注意保证模具定位和顶出的中心位置尺寸12060. 02,如图12.2. 1所示。
    (4)双料注射模具,若两种胶料的收缩率不同,其模具型腔的缩放量也不一致;当进行第二次注射时,第一次成形的胶件已收缩,因此模具第二次成形的封胶面应为胶件实际尺寸,亦可减小(单边)0.03mm来控制封胶,如图12.2.4所示。
塑胶双色模具设计入门资料+双色注塑机图解
    (5)模具二次成形的前模型腔,注意避空非封胶配合面,避免夹伤、擦伤第一次注射已成形的胶件表面,如图12.2. 4所示避免夹伤,又如图12.2. 5所示避免擦伤。
塑胶双色模具设计入门资料+双色注塑机图解
    (6)避免两胶料接合端处锐角接合;当出现锐角接合时,因尖锐角热量散失多,不利于两胶料熔合,角位易脱开,如图12.2. 6所示。
塑胶双色模具设计入门资料+双色注塑机图解
   (7)胶件两种胶料的选择注意其接合效果,常用各胶料组合见下表。
塑胶双色模具设计入门资料+双色注塑机图解
12.2. 3后模冷却方式
    双色/双料模具的冷却,前模与普通(单色料)模具相同;而后模安装在回转板上,冷却水是由回转板中部引入。冷却水进入后模方式通常有以下两种:
    (1)如图12.2.6所示,冷却水进入模具底板,通过引水柱进入垫板,再由垫板进入后模循环冷却。
塑胶双色模具设计入门资料+双色注塑机图解
    (2)如图12.2.7所示,冷却水进入模具底板并从侧面引出,再经软管通入垫板,后进入后模型腔冷却。
 
塑胶双色模具设计入门资料+双色注塑机图解

12.3模具示例
    (1)如图12.3.1 所示,模具成形胶件为双色料“笔”。模具前模采用哈夫结构如图12.3.2所示,由两组(每组四对)哈夫块组成;通过两组哈夫型腔的变化,来实现胶件内芯(硬胶)和旋转后外包胶料(软胶)的成形。模具后模利用胶件两端斜顶机构如图12.3.3 所示,使胶件第一次成形后固定在斜顶上,并旋转至另一组哈夫型腔内,二次成形后顶出胶件。
塑胶双色模具设计入门资料+双色注塑机图解
塑胶双色模具设计入门资料+双色注塑机图解

    (2)如图12.3.4所示,模具为推板模,成形胶件是双色料“按钮”。模具内两组型腔后模相同,前模变化。胶件第一次成形完成后留在后模上,顶出浇道;后模旋转1808, 合入另一组前模,再完成胶件二次成形,推出胶件并顶出浇道。
塑胶双色模具设计入门资料+双色注塑机图解

    (3)如图12.3.5所示,成形胶件“圆盘壳”上有一个不同色料的圆环。模具后模型腔都相同,前模有改变。第一次成形后,浇道经水口板脱出;旋转1808二次成形,胶件顶针顶出,浇道水口板脱出。
塑胶双色模具设计入门资料+双色注塑机图解塑胶双色模具设计入门资料+双色注塑机图解
塑胶双色模具设计入门资料+双色注塑机图解

Copyright © 2002-2023 深圳市畅享科技有限公司 版权所有 粤ICP备18100137号-1 XML地图

185-8849-8922