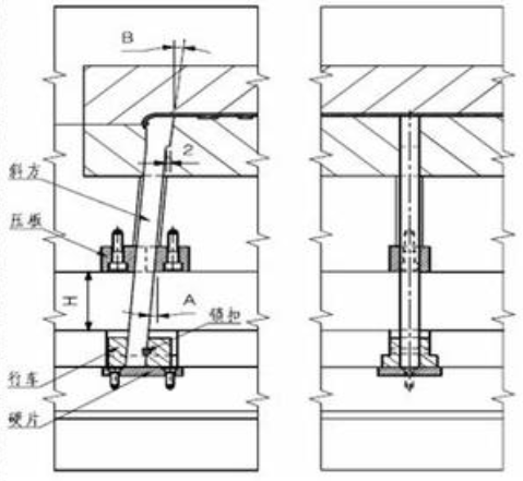
行位设计要符合以下条件.如图示
1:角A- -般(10-25)度.角度大小取决于行位让位行程.
2:角B- -般(5-20)度.角度大小取决于行位让位行程及斜导柱长度.
3:角A> (B+2)度.防止行位在运动过程中干涉.
4:行位投影长度L是投影高度H(1-2)倍
5:扁高型行位重心要求落在行位座上.以便行位能平放.不能有侧翻.
6:扁高型行位要求单独设计行位座. (单座.双座)以便节省材料.
7:行位行程L1> (L2+5). L2是产品最外投影边与行位最内投影边距离差.
8:斜导柱角度TgB=L1 /H2.导向长度L3=L1 /SinB. H2>H1+2
9:斜导柱直径d按行位运动阻力和包紧力大小决定.在同等条件下.斜导柱越长直径相对应要加大.斜导柱管位L4>(2-4)d.
侧抽芯的工作原理是通过侧向运动,获得侧向平移距离,从而使侧壁上的凸凹部位脱模.侧抽芯是通过模具开合或油缸产生侧向运动.如下图所示.
油缸抽出行位常用于.1:脱模行程长(大于50MM).
2:行位重量过在(大于50KG)